Image

"CARRE VAPINCUM"

PROGRAMME NEUF

CENTRE VILLE

405000 €

Référence
A/62
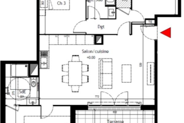
Nombre de pièces

4

Surface

96,50 m²

Garage

double inclus

Ascenseur

oui

Extérieur

terrasse 15,50 m²

Chauffage

individuel

Diagnostics énergétiques

Vignette DPEVignette GES
En savoir +
Bien soumis au régime de la copropriété !
Les informations sur les risques auxquels ce bien est exposé sont disponibles sur le site Géorisques : www.georisques.gouv.fr
Image
Le petit + de ce bien

la proximité du Parc de la Pépinière

"Carré Vapincum", LE PROGRAMME NEUF "tant attendu" quartier de la Gare face au parc de la Pépinière

D'une architecture harmonieuse et disposant d'un îlot central verdoyant, nous vous proposons un nouvel art de vivre en ville

Au prix de 405.000 € garage double inclus, réservez dès-à-présent cet appartement de type 4, traversant, de 96,50 m² en dernier étage avec profonde terrasse de 15,50 m²

Prestations de qualité pour un confort parfait, chauffage individuel par plancher chauffant alimenté par une chaudière gaz

Présentation maquette 3D, renseignements et réservation en agence.

Une image vaut mille mots
La galerie