Image

"CARRE VAPINCUM"

PROGRAMME NEUF

CENTRE VILLE

262000 €

Référence
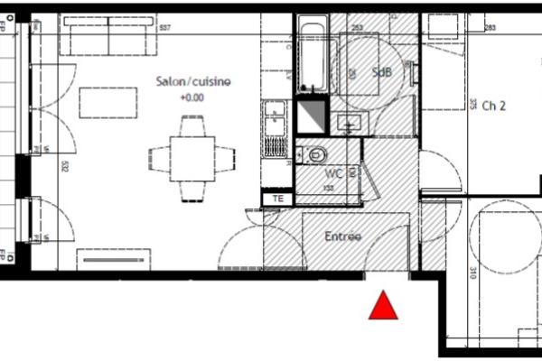
A13
Nombre de pièces

3

Surface

65,80 m²

Garage

inclus

Ascenseur

oui

Extérieur

loggia de 13,90 m²

Chauffage

individuel électrique

Diagnostics énergétiques

Vignette DPEVignette GES
En savoir +
Bien soumis au régime de la copropriété !
Les informations sur les risques auxquels ce bien est exposé sont disponibles sur le site Géorisques : www.georisques.gouv.fr
Image
Le petit + de ce bien

la proximité du parc de la Pépinière

"Carré Vapincum", LE PROGRAMME NEUF "tant attendu" quartier de la Gare face au parc de la Pépinière

D'une architecture harmonieuse et disposant d'un îlot central verdoyant, nous vous proposons un nouvel art de vivre en ville

Au prix de 262.000 € garage inclus, réservez dès-à-présent ce T3 ( n°A13 ) traversant de 65,80 m² avec profonde loggia de 13,90 m²

Prestations de qualité pour un confort parfait, chauffage individuel par radiateurs électrique à inertie fluide

Présentation maquette 3D, renseignements et réservation en agence

Une image vaut mille mots
La galerie